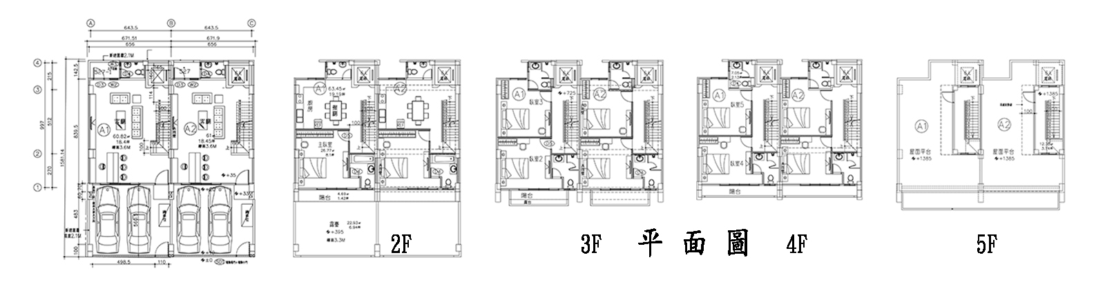
佳里 ~ 雙車庫透天五套房電梯別墅 ~
裝設電動車充電樁